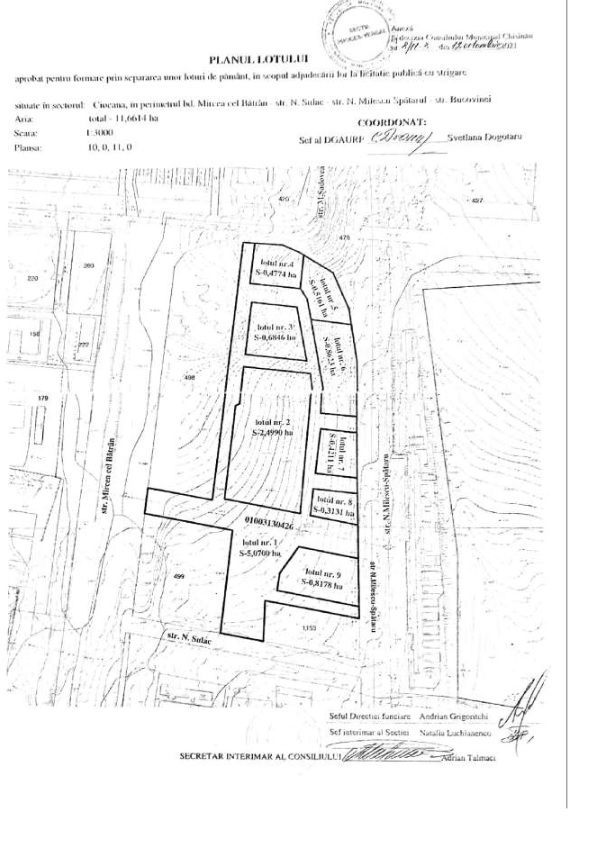
Жилой комплекс, зоны C2-R6, участок № 3 периметр бул. Мирча чел Бэтрын – ул. Н. Сулак – ул. Н. Милеску-Спэтарул – ул. Буковиней,

Описание

Лот: 6-V
Расположение: мун. Кишинёв
Район: Чеканы
Адрес: периметр бул. Мирча чел Бэтрын – ул. Н. Сулак – ул. Н. Милеску-Спэтарул – ул. Буковиней
кадастровый номер: 0100313.1176

Назначение: Жилой комплекс, зоны C2-R6
Площадь: 0,6846 га.
Первоначальная цена: 20 000 000 лей