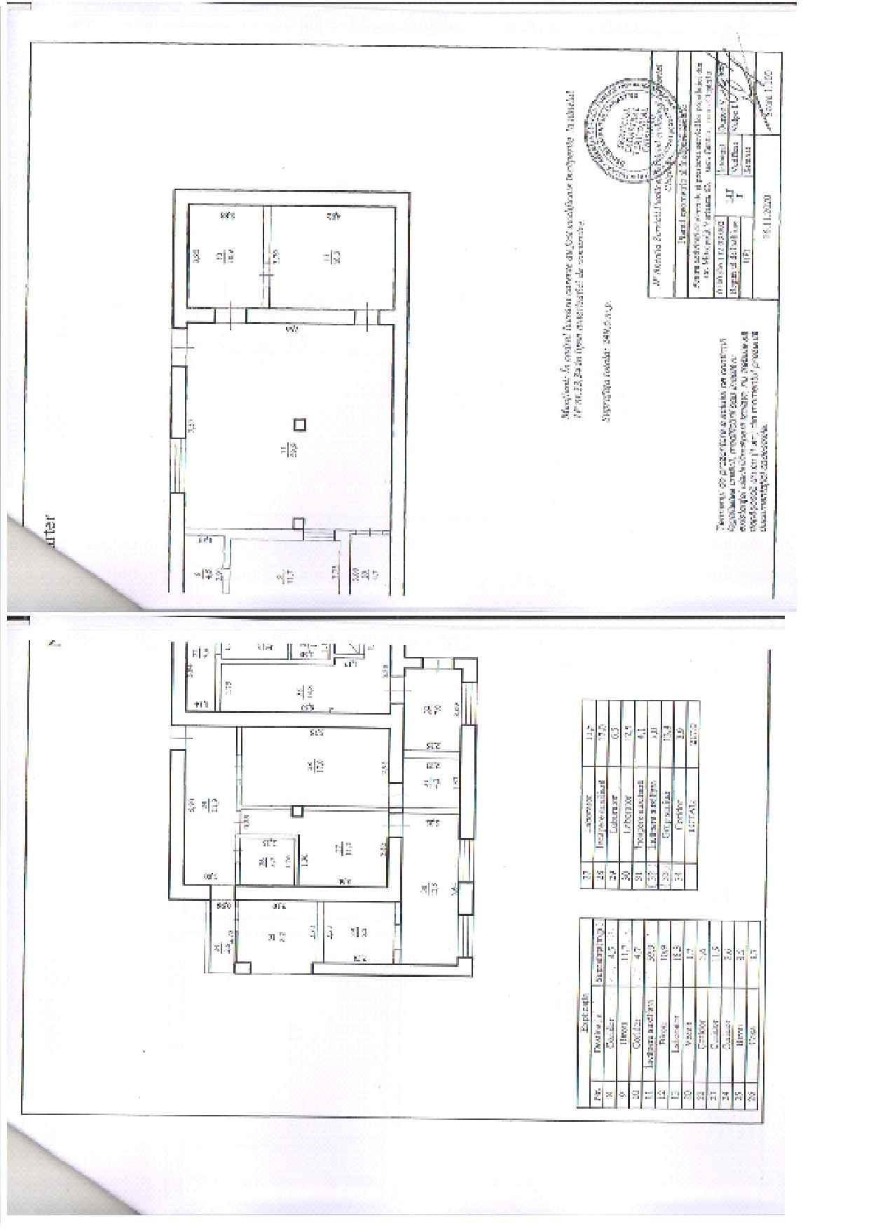
ул. Митрополит Варлаам, 63, партер

Описание

Лот: 14-î
Расположение: мун. Кишинёв
Район: Рышкань
Адрес: ул. Митрополит Варлаам, 63

Тип: партер
Срок аренды: 7 лет
Первоначальная стоимость годовой аренды: 600 000 лей