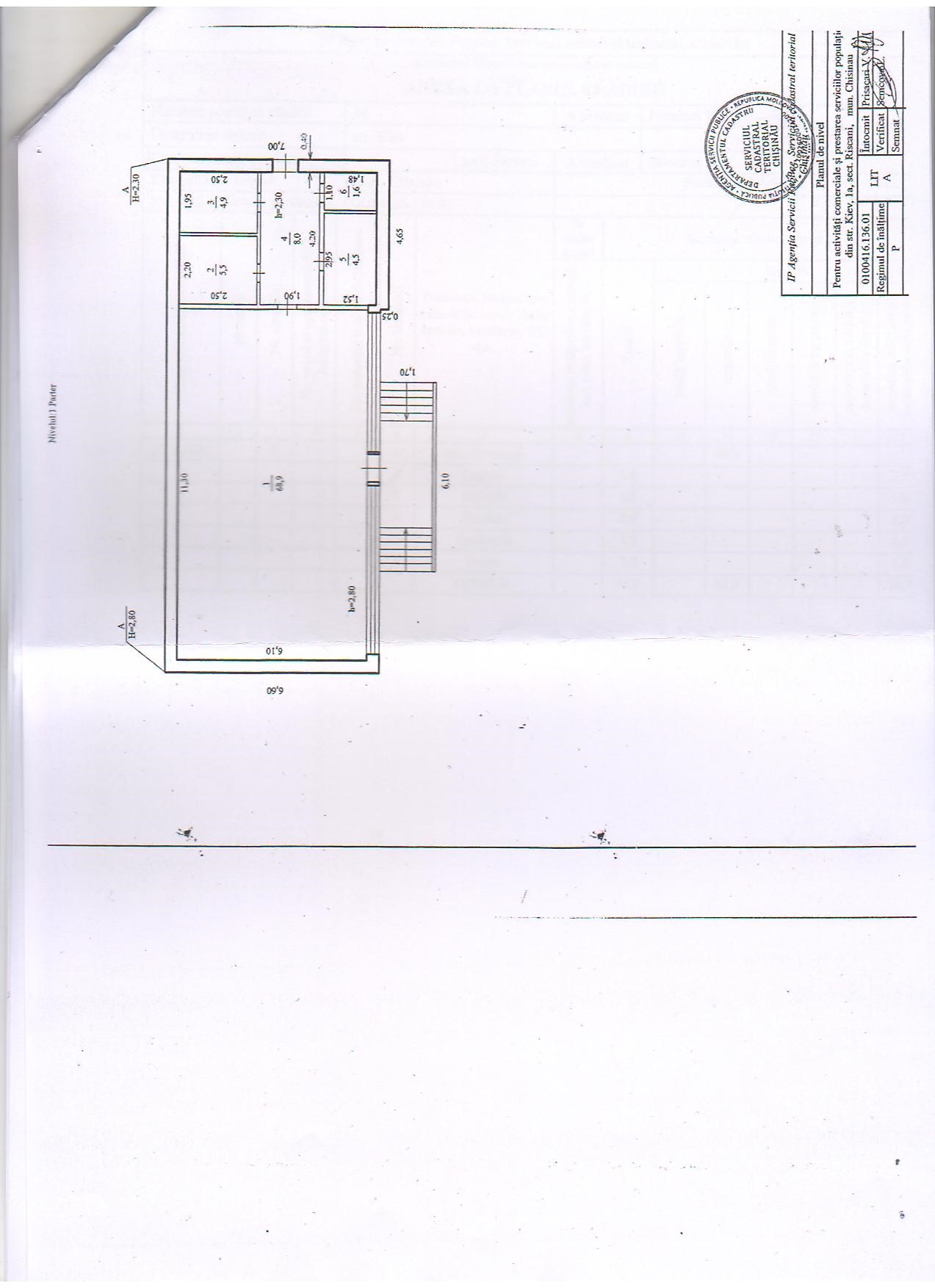
ул. Киев, 1а, партер

Описание

Лот: 9-î
Расположение: мун. Кишинёв
Район: Рышкань
Адрес: ул. Киев, 1а

Тип: партер
Срок аренды: 7 лет
Первоначальная стоимость годовой аренды: 200 000 лей