Объект совместимый с зоной C3, ул. Н. Милеску-Спэтарул, кадастровый номер 0100313.1172

Описание

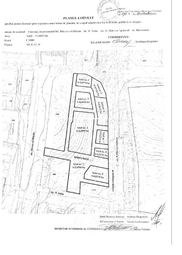
Лот: 2-V
Расположение: мун. Кишинёв
Район: Чеканы
Адрес: ул. Н. Милеску-Спэтарул
кадастровый номер: 0100313.1172

Назначение: Объект совместимый с зоной С3
Площадь: 0,4211 Га.
Первоначальная цена: 7 000 000 лей