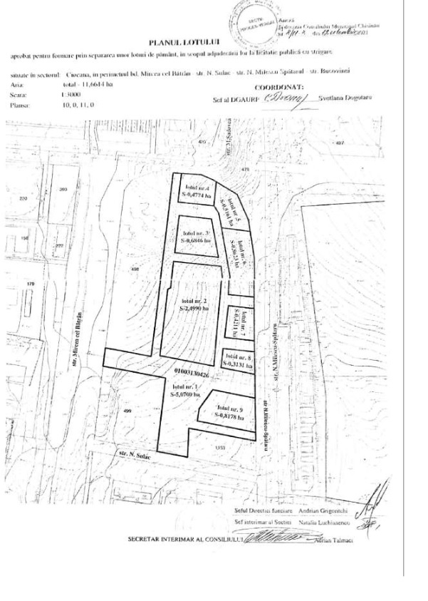
Жилой комплекс, зоны C2-R6, ул. Н. Милеску-Спэтарул, кадастровый номер 0100313.1176

Описание

Лот: 1-V
Расположение: мун. Кишинёв
Район: Чеканы
Адрес: ул. Н. Милеску-Спэтарул
кадастровый номер: 0100313.1176

Назначение: Жилой комплекс, зоны C2-R6
Площадь: 0,6846 Га.
Первоначальная цена: 15 000 000 лей