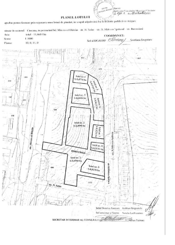
Ansamblu rezedențial, zona C2-R6, perimetrul bd. Mircea cel Bătrîn - str. N. Sulac - str. N. Milescu Spătarul - str. Bucovinei, numărul cadastral 0100313.1176

Descrierea

Lotul: 9-V
Locaţie: mun. Chişinău
Sectorul: Ciocana
Adresa: perimetrul bd. Mircea cel Bătrîn - str. N. Sulac – str. N. Milescu Spătarul - str. Bucovinei
nr. cadastral: 0100313.1176

Destinație:Ansamblu rezedențial, zona C2-R6
Prețul inițial: 20 000 000 lei
Suprafața: 0,6846 ha