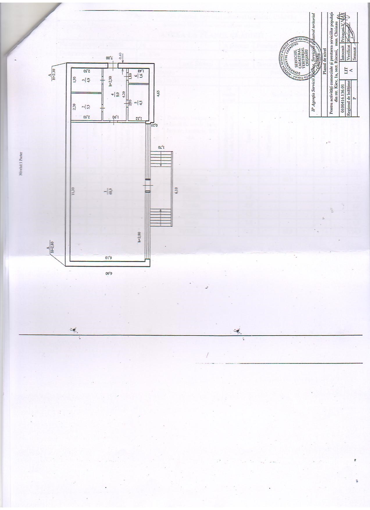
str. Kiev, 1a, parter

Descrierea

Lotul: 9-î
Locaţie: mun. Chişinău
Sectorul: Râșcani
Adresa: Kiev, 1a

Tipul: parter
Termenul de locațiune: 7 ani
Preţul iniţial de expunere la licitaţie: 200 000 lei